Oficinas en Campollano (Albacete)

AlquilerOficinasAlbacete02006Avenida Primera, 21. PI Campollano

Oficinas en Campollano (Albacete)

Avenida Primera, 21. PI Campollano
468

Lo esencial

  • Superficie: 468
  • Categoría:
  • Fecha Agregada : Agregado hace 7 meses

Descripción

  • Descripción:

    Espacio Profesional Amplio y Funcional.
    Descubre un entorno moderno, completamente equipado y diseñado para desarrollar tus actividades profesionales con comodidad y eficacia.

    Características principales:
    📍 Ubicación privilegiada: Situado en una zona excelente, bien comunicada y de fácil acceso.
    🛋️ Totalmente amueblado: Listo para empezar a trabajar, con mobiliario en perfecto estado.
    💡 Espacios amplios y luminosos: Distribución versátil que permite distintos usos, desde consultas y despachos hasta formación, coworking o terapias.
    🌿 Ambiente acogedor y profesional: Ideal para generar un entorno cómodo y eficiente.
    🧺 Zonas comunes: Recepción, sala de espera y aseos disponibles para tu comodidad y la de tus clientes.

    Precio total: 2.808 €.

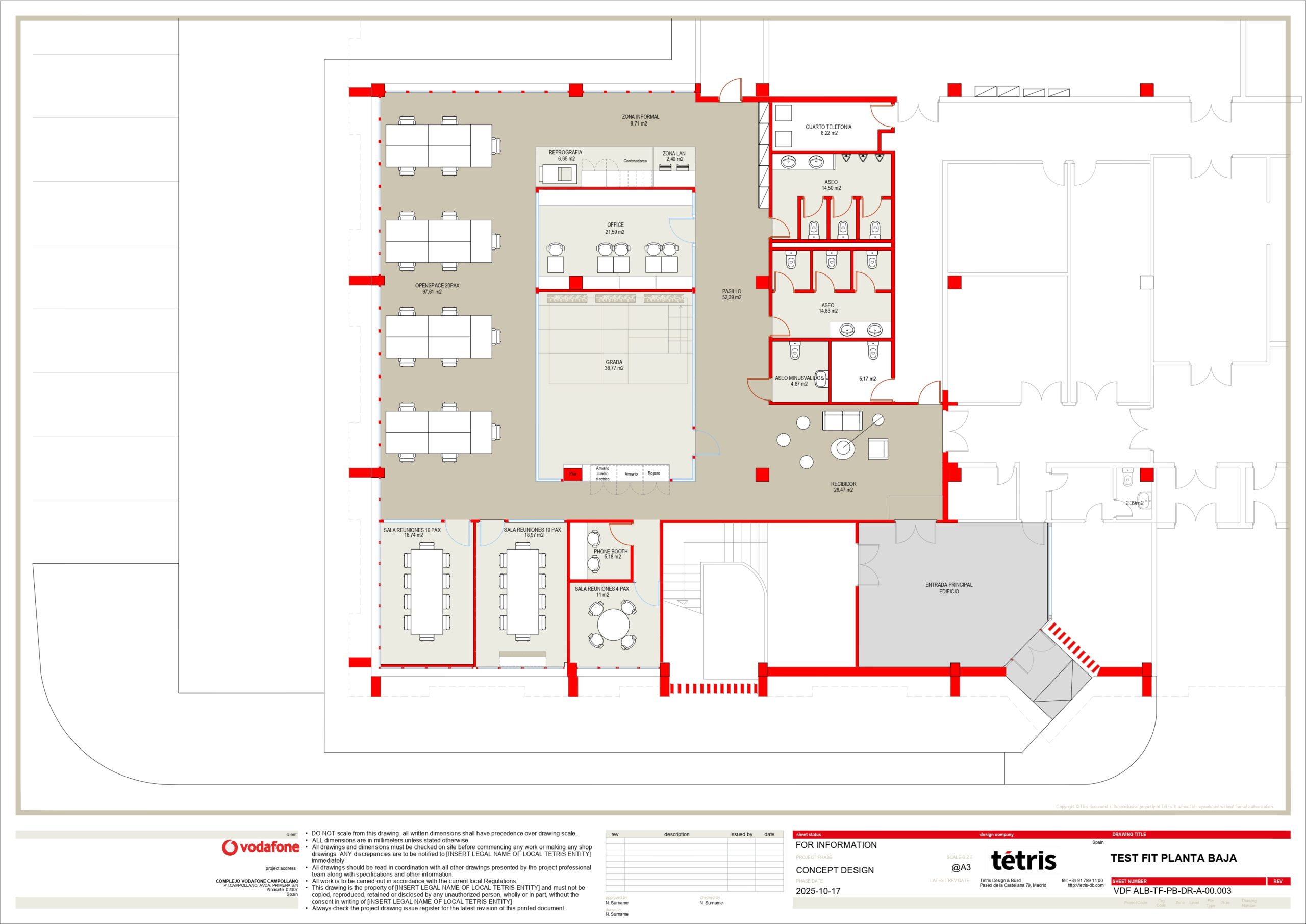
Planos de planta

  • Planos de planta :

Ubicación

Comparte este property

Dupdo

O compartir con

Reset password

Ingrese su dirección de correo electrónico y le enviaremos un enlace para cambiar su contraseña.

Crear una cuenta de agente

Administre sus listados, perfil y más

Teléfono

Los compradores lo utilizarán para ponerse en contacto contigo.

Al hacer clic en el botón «INSCRIBIRSE», acepta los Condiciones de uso y Política de privacidad

Crear una cuenta de agente

Administre sus listados, perfil y más